Multi Purpose Safety Store Model 1
Heavy-Duty Multi-Purpose Storage Unit | Industrial Compliance & Customisation
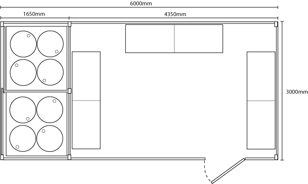
Engineered for versatile industrial storage, our Multi-Purpose Storage Unit (MPSU) is designed to securely accommodate 205-litre drums and 1000-litre IBCs, providing robust spill containment and organisational efficiency. Constructed from 2mm premium mild steel with 100 x 50 x 3mm RHS structural framing, this unit delivers exceptional durability and load-bearing capacity for demanding environments.
Key Features & Models
Model E-MPSU1
– Dual-Level Storage Capacity Safely stores 16 x 205L drums or 4 x 1000L IBCs on reinforced support beam bearers.
– Integrated Walk-In Storage Area: Features shelving and two-point locking system for secure tool or accessory storage.
– Secure Access: Padlockable sliding doors on drum/IBC compartments for enhanced safety.
Model E-MPSU2
– Expanded Dual-Level Capacity: Holds 32 x 205L drums or 8 x 1000L IBCs across both ends of the unit.
– Central Walk-In Storage: Shelved middle compartment with two-point locking for organized material management.
– Upgradable Options: Galvanized grid shelving (available at additional cost) for improved ventilation and spill drainage.
– Secure Access: Padlockable sliding doors on all storage sections.
Customization & Compliance
– Corrosion-Resistant Finishes: Standard powder-coated options include RAL 1028 (Yellow), RAL 5005 (Blue), RAL 6005 (Green), and RAL 3000 (Red). Custom colors available upon request.
– Regulatory Alignment: Designed to meet oil storage regulations and environmental health and safety standards, featuring compartmentalised sumps for spill segregation and containment.
– Tailored Solutions: Fully customisable dimensions, configurations, and accessories to match your operational requirements.
Technical Advantages
– Seam-Welded Construction: Liquid-tight sump ensures leak prevention.
– Forklift-Compatible Base: Raised design with heavy-duty steel bearers for easy pallet truck/forklift maneuvering.
– Durable Finish: 100-micron chemical- and corrosion-resistant paint system for long-term protection.
Ideal For: Industrial facilities, chemical storage, hazardous material management, and sites requiring compliant, high-capacity storage solutions.
Request a Custom Quote: Contact us to design a unit tailored to your exact specifications.
Why Choose Our MPSU Range?
– Safety First: Secure locking systems and spill containment.
– Future-Proof Design: Modular configurations adapt to evolving needs.
– Industry Compliance: Built to exceed regulatory standards.
£POA
Options
Model |
E-MPSU1C |
|---|---|
Description |
Multi Purpose Safety Store Model 1 |
Height |
3350mm |
Length |
6100mm |
Depth |
3000mm |
Capacity |
3800 Litres |
Price |
£POA |
|
Arrange a Free site survey with us today
Our bespoke service allows our customers to choose the exact designs to fulfil their requirements. A site survey is available on request to enable us to ascertain your exact storage requirements. Our friendly sales team is waiting to help with your enquiry.

